Welcome to this stylish first-floor apartment—an exceptional opportunity offered with No Onward Chain.
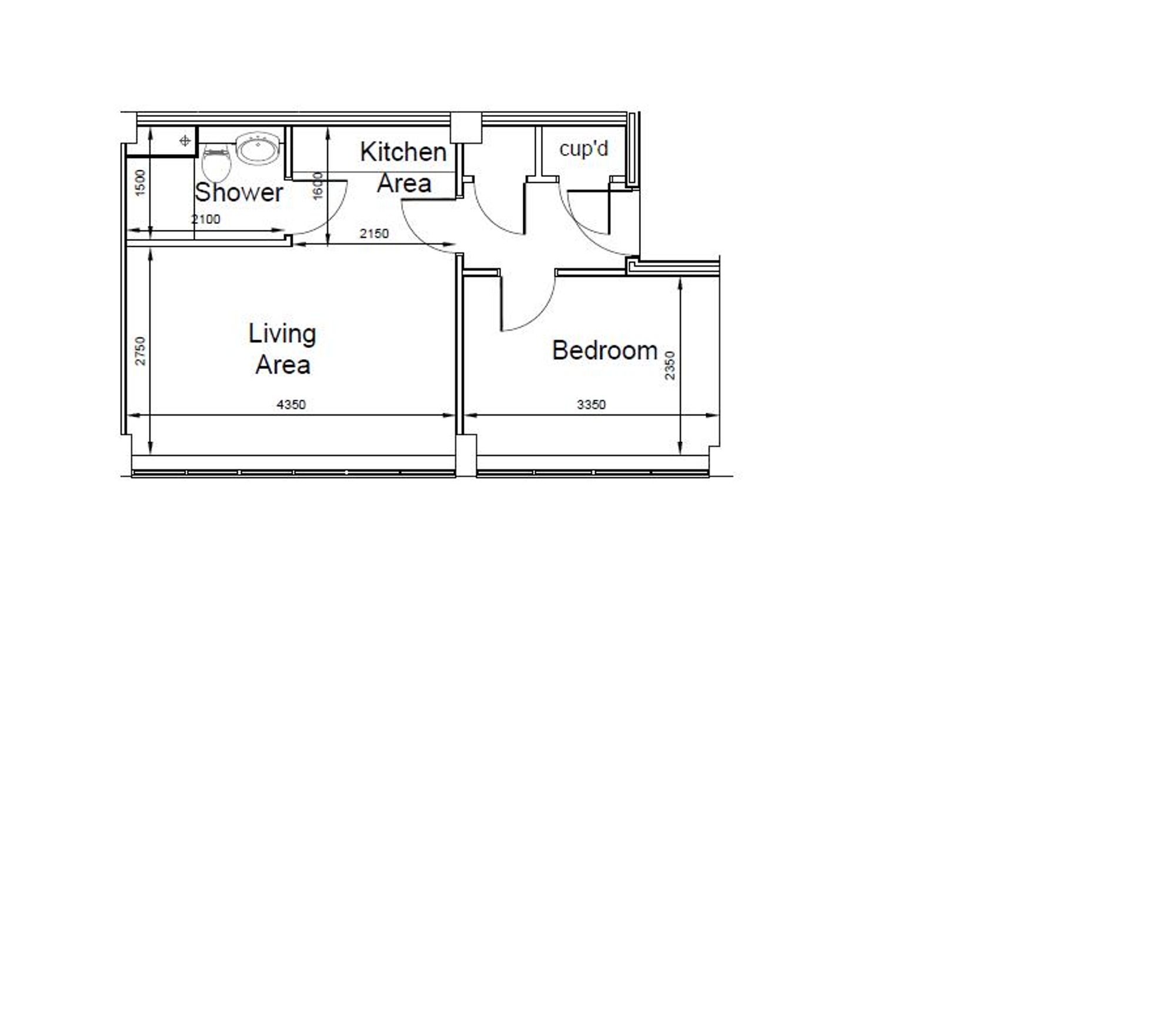
Set within a contemporary development, the home features an impressive open-plan living area where a sleek, fully fitted kitchen with integrated appliances flows effortlessly into a light-filled lounge—ideal for both everyday living and entertaining. The spacious double bedroom provides a relaxing retreat, while the shower room adds a touch of luxury. New wood flooring throughout enhances the property’s fresh and modern appeal, whilst the cupboard in the entrance hall provides ample storage along with space to accommodate a washer/dryer.
Perfectly positioned just minutes from the bustling town centre and mainline station, this apartment also benefits from the convenience of secure allocated parking—making urban living both easy and stress-free. Offering the ideal blend of modern comfort, prime location, and everyday practicality, this is a rare find in the heart of the town.
Property Features
- No Onward Chain
- Stylish Apartment Block with Great Investment Potential
- First Floor
- Open Plan Living
- Modern Kitchen
- Double Bedroom
- Modern Bathroom
- New Wood Flooring
- Secure Allocated Parking
- Minutes Walk To Town Centre & Station
Council Tax
Band: C
Please complete the form below to request a showing for this property. We will review your request and respond to you as soon as possible. Please add any additional notes or comments that we will need to know about your request.
Utilities, rights & restrictions
| Electric |
National grid |
| Water |
Direct main waters |
| Heating |
Electric central |
| Broadband | Ask agent |
| Sewerage |
Standard |
| Private rights of way | Ask agent |
| Public rights of way | No |
| Restrictions | No |
| Listed property | Ask agent |
| Flooded in last 5 years | Ask agent |
| Flood defenses | Ask agent |
| Source of flood | Ask agent |
